Last Updated: Nov 23, 2023     Views: 3879

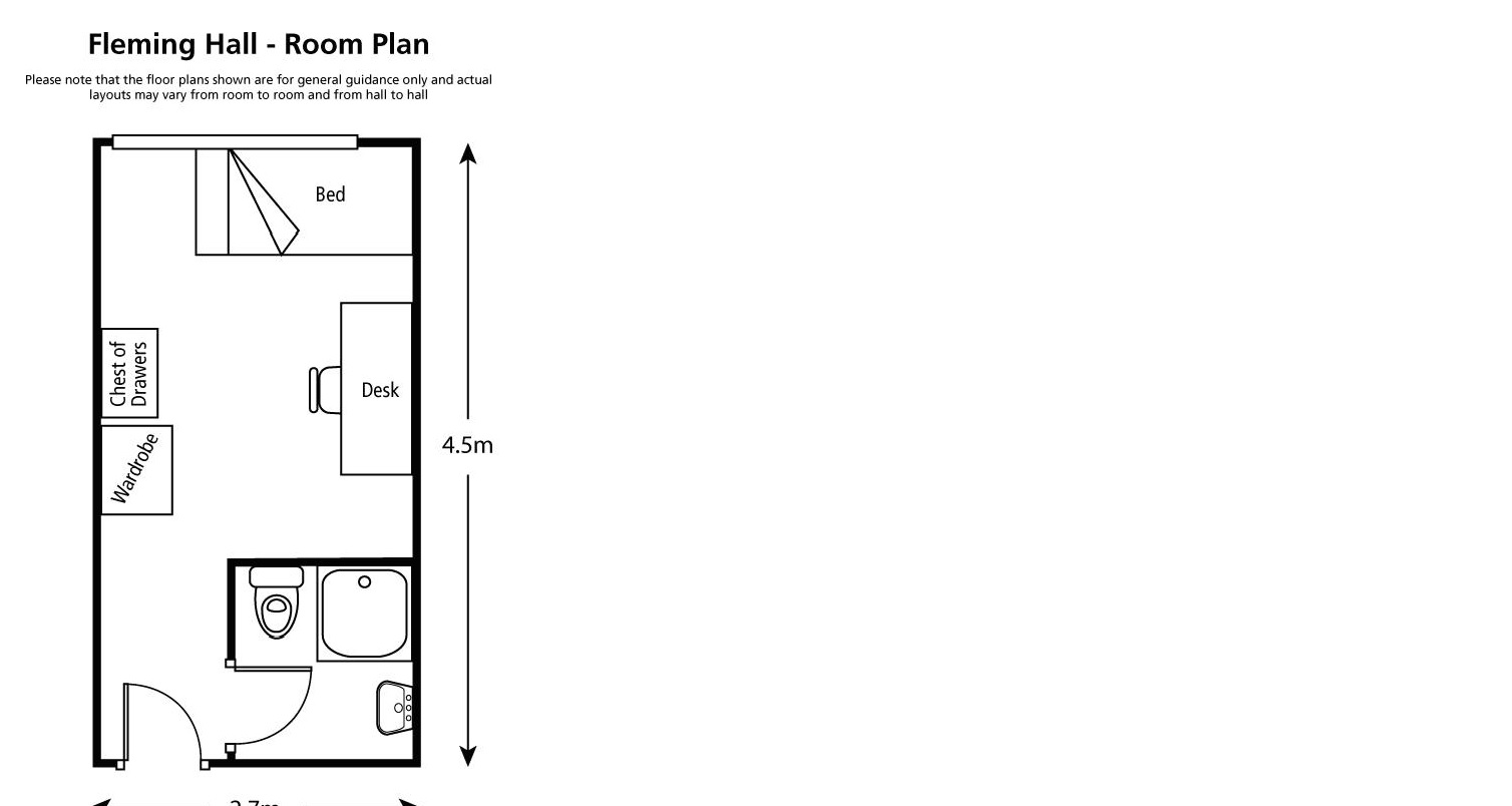
Rooms on campus vary from hall to hall. You can compare them by looking at the room plans listed below:

Please note: The floor plans shown are for general guidance only and actual layouts may vary from room to room and from hall to hall.

For more information you may want to read 'What facilities do I have in my room?' andWhat do I need to bring with me for my room or kitchen?’.

Related Topics

Chat with us